Avantaj pwodwi yo
- Segondè efikasite:Panèl solè Kanadyen Solè 410W gen anpil efikasite, ki vle di ke li ofri yon pi gwo kantite pwodiksyon pouvwa pou chak mèt kare espas okipe. Sa a tradwi nan yon rannman enèji ki pi wo, ki ekonomize ou lajan sou bòdwo elektrisite ou yo.
- Dirab ak pèfòmans:Panèl solè Kanadyen Solè 410W la bati pou dire epi li fèt pou reziste kondisyon metewolojik difisil tankou gwo chaj nèj, gwo van, ak tanperati ekstrèm. Dirab li asire pèfòmans konsistan pandan plizyè ane, sa ki fè li yon envestisman ekselan pou pwopriyetè kay ak biznis sanble.

- Tolerans pozitif ak degradasyon ki ba:Panno solè Kanadyen Solè 410W yo li te ye pou demontre tolerans pozitif, ki vle di ke yo fè pi bon pase pwodiksyon pouvwa nominal yo. Anplis de sa, yo fè eksperyans degradasyon minimòm pouvwa sou tan, sa ki pèmèt yo kenbe nivo efikasite yo pou peryòd pi long.
- Garanti siperyè:Avèk yon 25-ane garanti pwodiksyon pouvwa lineyè ak yon 12-ane garanti pwodwi, panèl solè Kanadyen Solè 410W la ofri pwopriyetè kay ak biznis lapè. Garanti sa yo asire ke panèl solè a apiye pa manifakti a, ki se yon konsiderasyon enpòtan lè w ap fè yon envestisman alontèm nan teknoloji solè.
- Zanmitay anviwònman an:Kanadyen Solè 410W panèl solè a se yon chwa zanmitay anviwònman an. Li fabrike ak sous enèji renouvlab, ak anprint kabòn li yo siyifikativman pi ba pase sous enèji tradisyonèl ki baze sou gaz fosil. Lè w sèvi ak panèl solè sa a, w ap pran etap nan direksyon pou yon avni dirab.

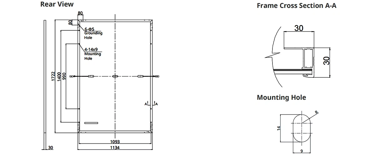
Desen Jeni (mm)

Done mekanik
|
Kalite selil |
Mono-cristaline |
|
Aranjman selilè |
108 [2 X (9 X 6) ] |
|
Dimansyon |
1722 ˣ 1134 ˣ 30 mm (67.8 ˣ 44.6 ˣ 1.18 pous) |
|
Pwa |
21.3 kg (47.0 liv) |
|
Kouvèti devan |
3.2 mm vè apeze ak kouch anti-reflektif |
|
Ankadreman |
Anodize alyaj aliminyòm |
|
J-Bwat |
IP68, 3 dyod kontoune |
|
Kab |
4 mm% c2� (IEC)% 2c 12 AWG (UL) |
|
Konektè |
T6 oswa MC4 oswa MC4-EVO2 oswa MC4-EVO2A |
|
Longè kab (Sa enkli Connector) |
Pòtre: 350 mm (16.1 pous) (+) / 250 mm (11.4 pous) (-); jaden flè: 1100 mm (43.3 pous) |
|
Pou chak palèt |
36 moso |

Paramèt elektrik nan STC
|
CS6R |
395ms |
400ms |
405MS |
410Ms |
415Ms |
420MS |
|
Maksimòm pouvwa (Pmax) |
395W |
400W |
405W |
410W |
415W |
420W |
|
Fonksyone vòltaj (Vmp) |
30.6V |
30.8V |
31.0V |
31.2V |
31.4V |
31.6V |
|
Fonksyone aktyèl (Imp) |
12.91A |
12.99A |
13.07A |
13.15A |
13.23A |
13.31A |
|
Voltaj sikwi louvri (Voc) |
36.6V |
36.8V |
37.0V |
37.2V |
37.4V |
37.6V |
|
Kout Awondisman Kouran (Isc) |
13.77A |
13.85A |
13.93A |
14.01A |
14.09A |
14.17A |
|
Modil efikasite |
20.2% |
20.5% |
20.7% |
21.0% |
21.3% |
21.5% |
|
Tanperati Fonksyònman |
-40 degre ~ +85 degre |
|||||
|
Max. Sistèm Voltage |
1500V (IEC/UL) oswa 1000V (IEC/UL) |
|||||
|
Modil Pèfòmans dife |
TIP 1 (UL 61730 1500V) oswa TIP 2 (UL 61730 1000V) oswa KLAS C (IEC 61730) |
|||||
|
Max. Seri Fuse Rating |
25 A |
|||||
|
Klasifikasyon Aplikasyon |
Klas A |
|||||
|
Pouvwa tolerans |
0 ~ + 10 W |
|||||

Paramèt elektrik nan NOCT
|
CS6R |
395ms |
400ms |
405MS |
410Ms |
415MS |
420MS |
|
Maksimòm pouvwa (Pmax) |
296W |
300W |
304W |
307W |
311W |
315W |
|
Fonksyone vòltaj (Vmp) |
28.7V |
28.9V |
29.1V |
29.2V |
29.4V |
29.6V |
|
Fonksyone aktyèl (Imp) |
10.33A |
10.39A |
10.45A |
10.52A |
10.58A |
10.65A |
|
Voltaj sikwi louvri (Voc) |
34.6V |
34.8V |
35.0V |
35.1V |
35.3V |
35.5V |
|
Kout Awondisman Kouran (Isc) |
11.09A |
11.15A |
11.21A |
11.28A |
11.34A |
11.41A |
|
Koefisyan Tanperati (Pmax) |
-0.34 % / degre |
|||||
|
Koefisyan Tanperati (Voc) |
-0.26 % / degre |
|||||
|
Koefisyan Tanperati (Isc) |
0.05 % / degre |
|||||
|
Tanperati Fonksyònman |
42 ± 3 degre |
|||||

Koperasyon mak
Jingsun, yon konpayi enèji solè dirijan, fyè pou l anonse patenarya li ak gwo mak solè premye nivo. Kolaborasyon nou an kouvri plizyè aspè nan endistri solè a, soti nan fabrikasyon ak distribisyon ak rechèch ak devlopman. Avèk objektif pataje pou ankouraje enèji pwòp ak yon avni dirab, nou vize pou bay kliyan nou yo solisyon solè ki pi inovatè ak efikas.
Lè Jingsun fè patenarya ak pi gwo mak solè sa yo, Jingsun jwenn aksè a teknoloji ak resous dènye kri, sa ki pèmèt nou amelyore òf ak sèvis nou yo. Ekip ekspè nou an dedye a bay bon jan kalite pwodwi solè ak solisyon ki satisfè bezwen inik chak kliyan.

FAQ
K: Ki sa ki durability nan panèl solè Kanadyen an 410W?
K: Konbyen pouvwa panèl solè Kanadyen 410W ka jenere chak jou?
K: Ki pwosesis enstalasyon panèl solè Kanadyen 410W la?
K: Ki kalite selil solè yo itilize nan panèl solè Kanadyen 410W?

Baj popilè: Kanadyen solè 410w, Lachin Kanadyen solè 410w manifaktirè, Swèd, faktori



